+++ TOP - ANGEBOT +++
Erstklassige Mietrendite, Objekt-ID: 1354
Objektdaten
| Objekt-ID | 1354 |
| Objekttyp | Mehrfamilienhaus, Renditeobjekt |
| Adresse | 46446 Emmerich/Praest (NRW) |
| Status | vermietet |
| Preise | |
| Kaufpreis | 950.000 EUR |
| Jahres-Nettomiete | ca. 57.200 EUR |
| Käuferprovision | Provisionsfrei |
| Flächen | |
| Wohnfläche | ca. 708 m² |
| Nutzfläche/Scheune | ca. 320 m² |
| Grundstücksfläche | 3.508 m² |
| landwirtschaftl. Fläche | 5.315 m² |
| Ausstattung | |
| Garagen | 5 |
| Stellplätze | 14 (9 vermietet, 5 für Besucher) |
| Pool (beheizt, überdacht) | 9,80 x 4,50 m inkl. römischer Treppe und beweglichem Poolhaus 12m Länge, in Stehhöhe |
| Fußbodenheizung | Erdgeschoss |
Objektbeschreibung
Dieses familienfreundliche Mehrfamilienhaus mit Nebengebäude im Landhausstil in Emmerich/Praest ist sowohl für Kapitalanleger, als auch für Naturfreunde mit anspruchsvollen Renditezielen ein Glücksfall.
Die Wohnungen sind voll vermietet. Seit dem Abschluss der ersten Ausbauphase 1996 gab es nicht einen Monat Leerstand – Mietauslastung seitdem 100%.
1999 wurde der rechte Teil des ehemaligen Bauernhauses liebevoll komplett saniert und ausgebaut. 2001 wurde dann in der zweiten Ausbauphase der linke Teil ebenfalls komplett saniert und ausgebaut.
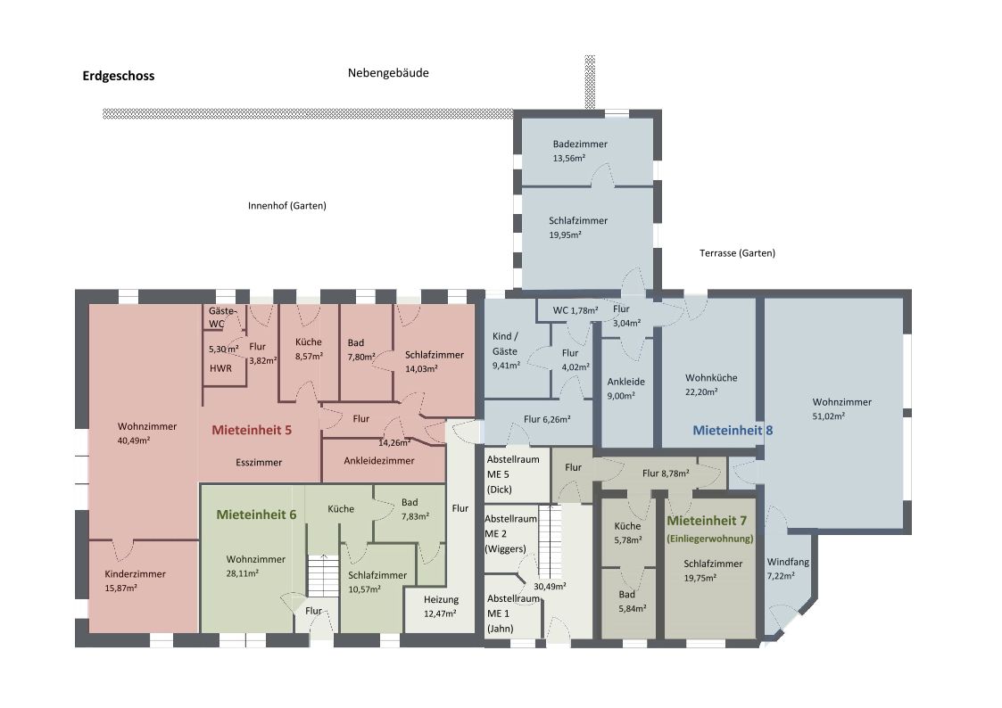
Alle 8 Wohnungen sind abgeschlossen und verfügen über separate Eingänge, eigene Gartenbereiche und Stellplätze/Garagen.
Die jährliche Mieteinnahme beträgt derzeit EUR 57.230 zzgl. Nebenkosten incl. der derzeit vom Eigentümer selbst genutzte Wohnungen (Mieteinheiten 7+8) incl. großem Garten mit Swimmingpool und dazugehörigen Garagen.
Die derzeit vom Eigentümer genutzten Wohneinheiten können auf Wunsch nach zeitlicher Absprache geräumt werden.
Wohnfläche gesamt: ca. 708 m²
zusätzliche Nutzfläche: ca. 320 m²
Die Wohnungen im Erdgeschoss verfügen über eine Fußbodenheizung, sämtliche Jalousien werden elektrische betrieben.
Bei diesem Objekt handelt es sich um einen ehemaligen Bauernhof nebst Nebengebäude (Scheune), welches ebenfalls noch Potential hat, weiter nutzbar gemacht zu werden.
Das Objekt wurde in Massivbauweise errichtet. Die Kunststofffenster mit Isolierverglasung sind teilweise aus dem Jahr 1998 und teilweise auch aus 2001, ebenso die Bäder, die Gasheizungsanlagen, die Dacheindeckungen.
Alle Wohnungen sind mit Fußbodenfliesen oder Laminat ausgestattet, die Bäder sind gefliest und verfügen jeweils über eine Badewanne oder eine Dusche. Die Wohnungen im Obergeschoss verfügen über eine Empore im ausgebauten Dachboden.
Lage
Emmerich am Rhein: Die rechtsrheinische Hansestadt am unteren Niederrhein gehört zum Kreis Kleve im Regierungsbezirk Düsseldorf. Sie ist Mitglied der Euregio Rhein-Waal sowie der Rheinischen Hanse.
Emmerich ist ein Ausflugsziel für Menschen von nah und fern. Die Rheinpromenade mit Blick auf die längste Hängebrücke Deutschlands und die Kirchen mit Schatzkammer oder Schrottkreuz sind besonders sehenswert. Weitere Attraktionen: Schiffsausflüge, Rheinmuseum, Eltener Berg mit 1000jähriger Kirche, Rheintalblick und Drususbrunnen, Barfußpfad, Schlösschen Borghees, ein Kaffeetechnikmuseum, ein Erlebnisbad mit großer Sauna und vieles mehr.
In Emmerich finden Sie alles, was das Herz begehrt: sämtliche Geschäfte des täglichen Bedarfs, vielfältige Shopping-Möglichkeiten, ein Krankenhaus, Ärzte aller Fachrichtungen, Banken und überdies ein attraktives, abwechslungsreiches Gastronomie- und Unterhaltungsangebot. Zu Spaziergängen laden reizvolle Grünflächen und die Rheinpromenade ein.
Emmerich bildet das Tarifgebiet 71 des Verkehrsverbundes Rhein-Ruhr (VRR).
Überörtlich gibt es drei Buslinien. Im Halbstundentakt fährt ein sogenannter Schnellbus (Linie SB58) nach Kleve und im Stundentakt weiter nach Nijmegen. Ebenfalls im Stundentakt fährt die Buslinie nach Rees (Linie 88). Die Linie nach ’s-Heerenberg (Montferland, NL) (Linie 91, neunmal täglich) wird im Stunden- und Zweistundentakt bedient.
Die Auffahrt zur BAB3/Emmerich Ost ist in 10 Minuten erreichbar. Die Entfernung vom Objekt zum Bahnhof Emmerich beträgt 5 km. Bis Arnheim sind es 25 km, zur Kreisstadt Kleve nur 12 km.
Die dargestellte Position der Immobilie ist nur eine ungefähre Angabe.
Energieausweis
| Art des Energieausweises | Bedarfsausweis |
| Ausstelldatum | 27.07.2015 |
| Gültig bis | 26.07.2025 |
| Baujahr laut Energieausweis | 1949 Umbau 1999 |
| Endenergieverbrauch | 121,5 kWh (m²-a) |
| Energieeffizienzklasse | D |
| Primärenergieträger | GAS |

Objektfotos
[caldera_form id=“CF5d2b3c1f10e4b“]

